In een rustige en verzorgde woonomgeving met vrij uitzicht over een plantsoen in het gemoedelijke dorp Slootdorp, bieden wij aan deze vrijstaande, goed onderhouden bungalow (ca. 61 m²). De driekamerwoning is gelegen op een royaal perceel eigen grond van 425 m², heeft een garage, carport en een fraai aangelegde tuin waar u de hele dag van de zon kunt genieten. Deze woning biedt comfortabel en gelijkvloers wonen in een prettige setting. Ook geschikt voor starters op de woningmarkt.
Indeling
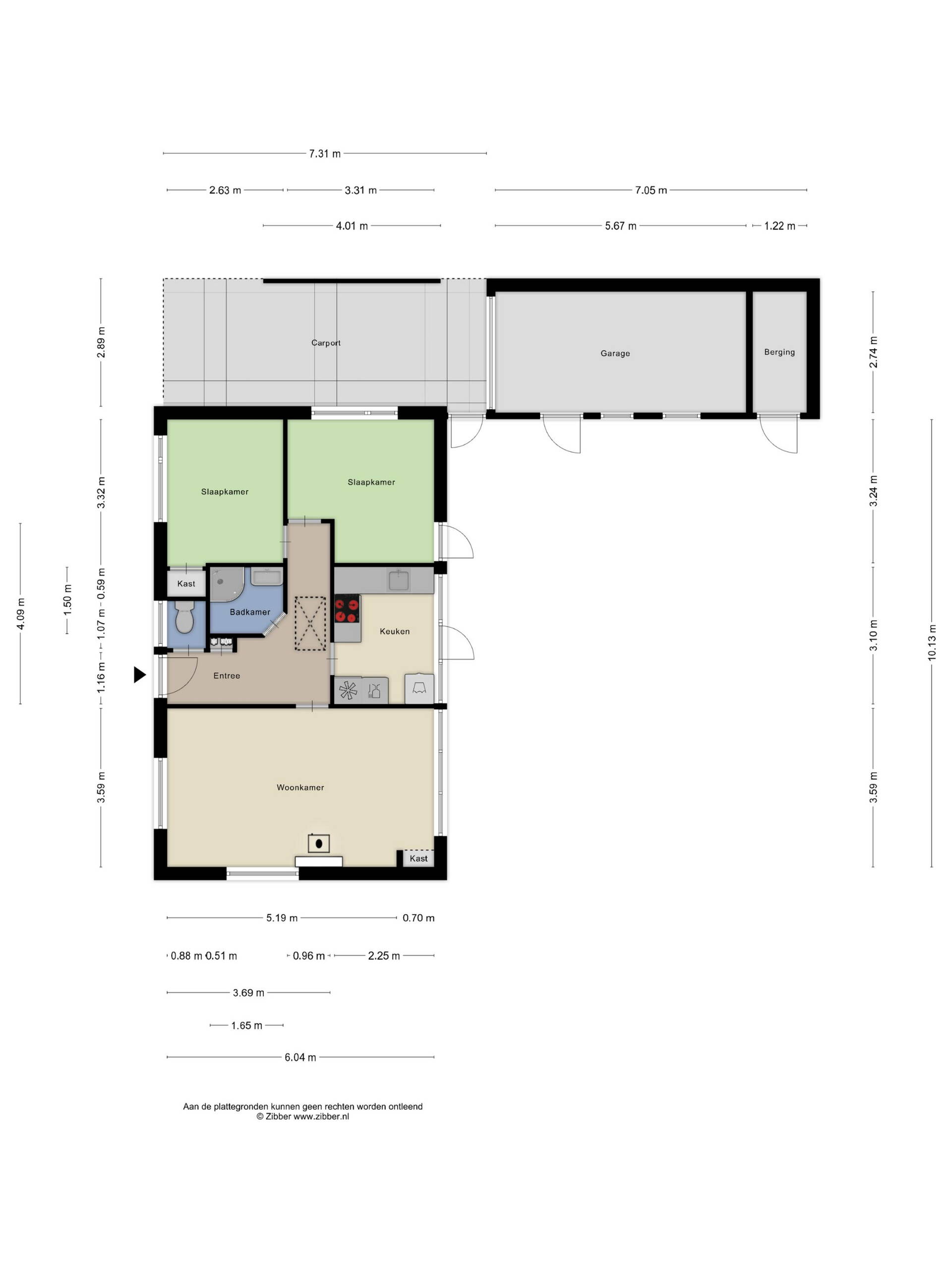
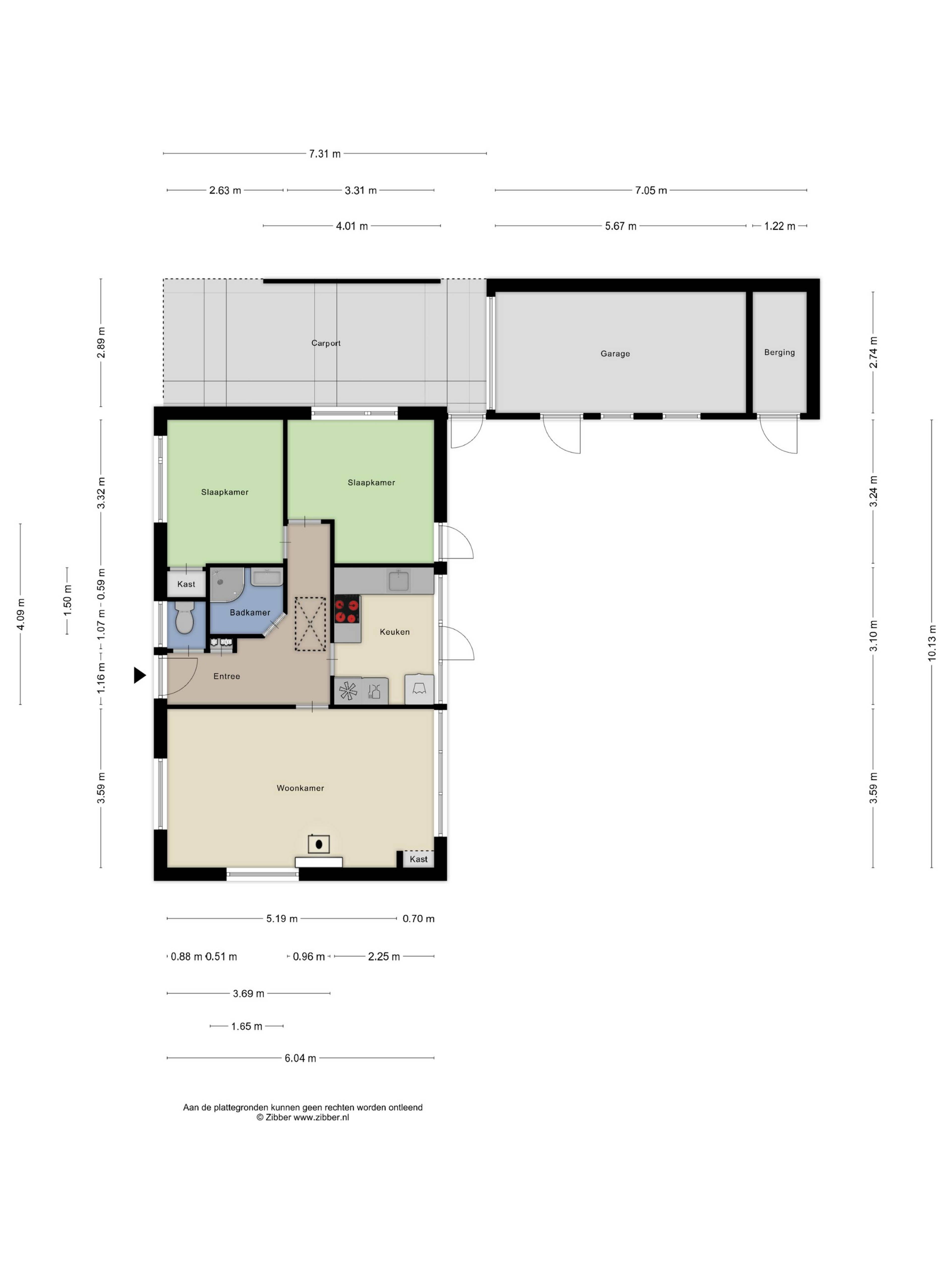
Via de verzorgde voortuin bereikt u de entree, centraal gesitueerd aan de voorzijde van de woning. De hal geeft toegang tot het (vernieuwde) toilet, de meterkast en de gang. Vanuit de gang zijn de woonkamer, de keuken, de badkamer en de slaapkamers bereikbaar.
Aan de koele noordzijde van de woning bevinden zich twee slaapkamers. Eén slaapkamer is gesitueerd aan de voorzijde, de andere slaapkamer ligt aan de achterzijde en biedt directe toegang tot de tuin middels een deur.
De badkamer is in 2023 vernieuwd en voorzien van een douchecabine en een wastafel.
De keuken is uitgerust met een inductiekookplaat met afzuigkap en carroussel. Tevens bevindt zich hier de aansluiting voor de wasmachine. Vanuit de keuken is via een enkele deur de achtertuin bereikbaar.
De woonkamer is een lichte en aangename verblijfsruimte dankzij de rondom geplaatste ramen (kunststof kozijnen en HR++ beglazing). Voor extra comfort is de ruimte voorzien van een pellet kachel en infraroodverwarming boven de eethoek, wat bijdraagt aan een behaaglijk binnenklimaat.
Over de hele breedte van de woning bevindt zich een ruime vliering, bereikbaar via een vlizotrap.
De achtertuin is fraai aangelegd met verschillende hoogteniveaus, een rijke variatie aan beplanting en een vijver. U treft hier onder meer een blauwe regen, rozenstruiken en diverse groenblijvende elementen. Dankzij de indeling en begroeiing biedt de tuin een prettige mate van privacy.
Aan de linkerzijde van de woning bevindt zich een royale carport (ca. 21 m²) met daarachter de garage. De garage is voorzien van elektra en een overheaddeur. Onder de carport is een poort gesitueerd die toegang biedt tot de achtertuin. Aan de rechterzijde van de woning bevindt zich eveneens een poort naar de achtertuin, alsmede een houten berghok voor extra opslagruimte.
Ligging:
De woning is gelegen in een rustige woonwijk in Slootdorp, een dorp dat bekend staat om zijn ruimtelijke opzet en prettige leefomgeving. In de directe omgeving zijn diverse voorzieningen aanwezig, waaronder een basisschool, sportverenigingen en recreatiemogelijkheden. Voor dagelijkse boodschappen en een breder winkelaanbod zijn omliggende plaatsen zoals Middenmeer en Wieringerwerf op korte afstand gelegen. Tevens zijn uitvalswegen richting onder meer Alkmaar en Den Helder goed bereikbaar en is er een snelle ontsluiting naar de snelweg A7.
Belangrijkste kenmerken:
•Vrijstaande bungalow op een royaal perceel eigen grond van 425 m²;
•Energielabel E, maar inmiddels een gunstiger label door verduurzaming van de woning (o.a. zonnepanelen en vloerisolatie);
•Voorzien van vier zonnepanelen;
•Levensloopbestendig;
•Cv-ketel (2018), pellet kachel en infraroodverwarming;
•Keuken is in 2024 vernieuwd;
•Royale, fraai aangelegde tuin met vijver en diverse beplanting;
•Garage met elektra en overheaddeur;
•Royale carport (ca.21 m²);
•De woning kan bouwkundig worden uitgebreid.