Modern wonen met luxe, licht en een riant zonneterras op toplocatie!
Aan de Brantjesoever 15 in Purmerend staat deze moderne en uitstekend afgewerkte woning, gelegen in een in 2022 nieuwgebouwde wijk direct naast het stadje, oftewel het stadscentrum van Purmerend. Hier woon je letterlijk op steenworp afstand van de gezellige binnenstad, terwijl je profiteert van het comfort en de duurzaamheid van een nieuwbouwwoning. Dankzij de hoekligging zijn er extra veel raampartijen, wat zorgt voor veel natuurlijk lichtinval.
Met een luxe woonverdieping, een riant zonneterras van circa 35 m² op het noordwesten, vier (slaap)kamers, twee parkeerplaatsen en energielabel A+ is dit een toekomstbestendig huis waar comfort en duurzaamheid samenkomen. De woning is voorzien van zonnepanelen, stadsverwarming en maar liefst vier airco’s, één in de woonkamer en drie op de tweede verdieping.
Ligging & omgeving
De woning ligt in een jonge, moderne woonwijk direct grenzend aan het centrum van Purmerend. Je loopt zo het stadje in met een gevarieerd aanbod aan winkels, horeca en terrassen. Ook culturele voorzieningen zoals Theater De Purmaryn en poppodium P3 bevinden zich op korte afstand. Supermarkten, scholen en openbaar vervoer zijn dichtbij en de uitvalswegen richting Amsterdam, Hoorn en Zaandam zijn goed bereikbaar. Een unieke combinatie van stedelijke levendigheid en comfortabel wonen in een eigentijdse wijk.
Indeling
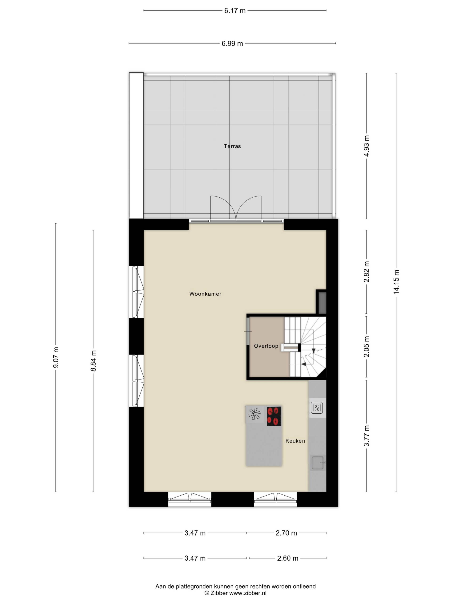
Begane grond
Via de entree kom je in de hal met op maat gemaakte garderobekasten, een separaat toilet en een ruime trapkast voor extra bergruimte. Aan de voorzijde bevindt zich een werkkamer die ook uitstekend kan dienen als slaapkamer. Aan de achterzijde ligt de berging met wasmachineaansluiting. De gehele begane grond is voorzien van een pvc vloer, met uitzondering van de berging.
Eerste verdieping
De woonverdieping is een echte eyecatcher. De lichte woonkamer met luxe open keuken is afgewerkt met een pvc visgraatvloer die zorgt voor een warme en stijlvolle uitstraling. Door de hoekligging en de vele raampartijen is de lichtinval hier bijzonder aangena Hier geniet je volop van de middag- en avondzon en heb je meer dan genoeg ruimte voor een loungeset en eettafel.
De keuken is hoogwaardig uitgevoerd en voorzien van een wijnklimaatkast, zonevrije inductiekookplaat, stoomoven, combi oven, koelkast, vaatwasser, afzuigkap en een Quooker. Een keuken die niet alleen praktisch is, maar ook uitnodigt tot uitgebreid koken en gezellig samenzijn.
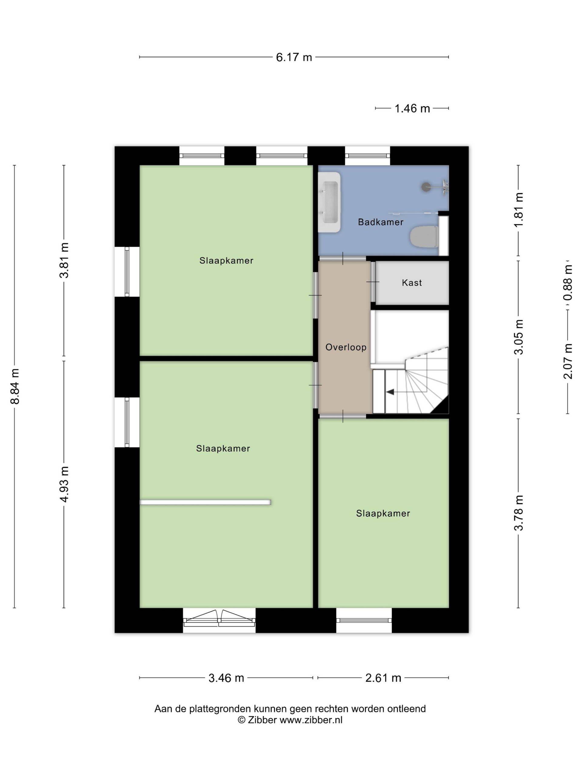
Tweede verdieping
Op deze verdieping bevinden zich drie slaapkamers van verschillende formaten, alledrie met airconditioning. De hoofdslaapkamer beschikt daarnaast over een walk in closet. De moderne badkamer is compleet uitgevoerd met een douche, wastafelmeubel en toilet. Op de overloop en in alle slaapkamers is de laminaatvloer doorgelegd, wat zorgt voor een rustige en verzorgde uitstraling. Vanaf de overloop is er nog een extra opbergkast bereikbaar.
Parkeerplaatsen
Achter de woning bevinden zich twee eigen parkeerplaatsen op een afgesloten binnenterrein dat uitsluitend via een elektrisch bedienbare toegangspoort bereikbaar is, wat zorgt voor extra privacy en veiligheid. In een wijk waar betaald parkeren geldt, is het een groot pluspunt om hier altijd over twee vaste parkeerplaatsen op eigen terrein te beschikken.
Bijzonderheden
- Bouwjaar 2022
- Hoekligging met extra veel lichtinval
- Riant zonneterras van circa 35 m² op het noordwesten
- Luxe open keuken met hoogwaardige inbouwapparatuur
- Vier slaapkamers waarvan één met walk in closet
- Vier airco’s
- 12 Zonnepanelen en stadsverwarming
- WTW installatie
- Energielabel A+
- Twee parkeerplaatsen op eigen terrein (er een VVE voor de parkeerplaatsen)
- Instapklaar en modern afgewerkt
Ben je op zoek naar een moderne, duurzame en luxe woning op een unieke plek nabij het centrum van Purmerend? Neem dan contact met ons op voor een bezichtiging van Brantjesoever 15 en ervaar zelf de ruimte, het licht en het wooncomfort.