Unieke kans in de geliefde Bloemenbuurt
Ben je op zoek naar een sfeervolle en instapklare woning in het bruisende Amsterdam-Noord op loopafstand van Amsterdam centraal? Dan is deze charmante woning, verdeeld over drie bouwlagen (ca. 95 m²), precies wat je zoekt! Met een zonnige tuin op het zuidoosten, een dakterras én een apart berging (ca. 4 m²), biedt deze woning alle ruimte en comfort die je nodig hebt.
Perfecte locatie
Gelegen in de populaire Bloemenbuurt, op steenworp afstand van het Noorderpark, metrostation Noorderpark en winkelcentrum Mosveld, woon je hier in een rustige, maar levendige omgeving. Binnen 5 minuten fietsen sta je bij de pont richting Centraal Station of geniet je van het groen in Landelijk Noord en natuurgebied Het Twiske. Ook hotspots zoals Het Vliegenbos, de hippe restaurants aan het Gedempt Hamerkanaal en de NDSM-werf zijn snel bereikbaar. Met de A10 om de hoek en uitstekende OV-verbindingen, ben je binnen no-time waar je moet zijn!
De bereikbaarheid is zeer goed te noemen: ca. 5 minuten fietsafstand naar de pont richting het centraal station (dag en nacht) of naar Landelijk Noord en Het Twiske. Het Noorderpark, Het Vliegenbos, de Jumbo Foodmarket, de Landmarkt, hippe eetgelegenheden aan het Gedempt Hamerkanaal e.o. en de NDSM werf zijn allemaal binnen 10 minuten fietsafstand te bereiken. In nog geen 3 autominuten bent u op de ringweg A10 van Amsterdam met zijn uitvalswegen, evenals verschillende openbaar vervoersvoorzieningen. Het metrostation Noorderpark van de Noord-Zuidlijn met busstation en het zwembad is op 2 minuten. U mag uw fiets meenemen in de Metro dus u bent altijd snel op de gewenste locatie. Het winkelcentrum Mosveld met supermarkten en andere winkels is ook op loopafstand.
Indeling
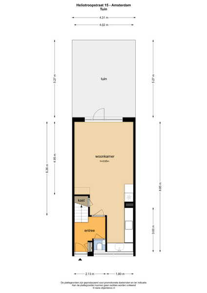
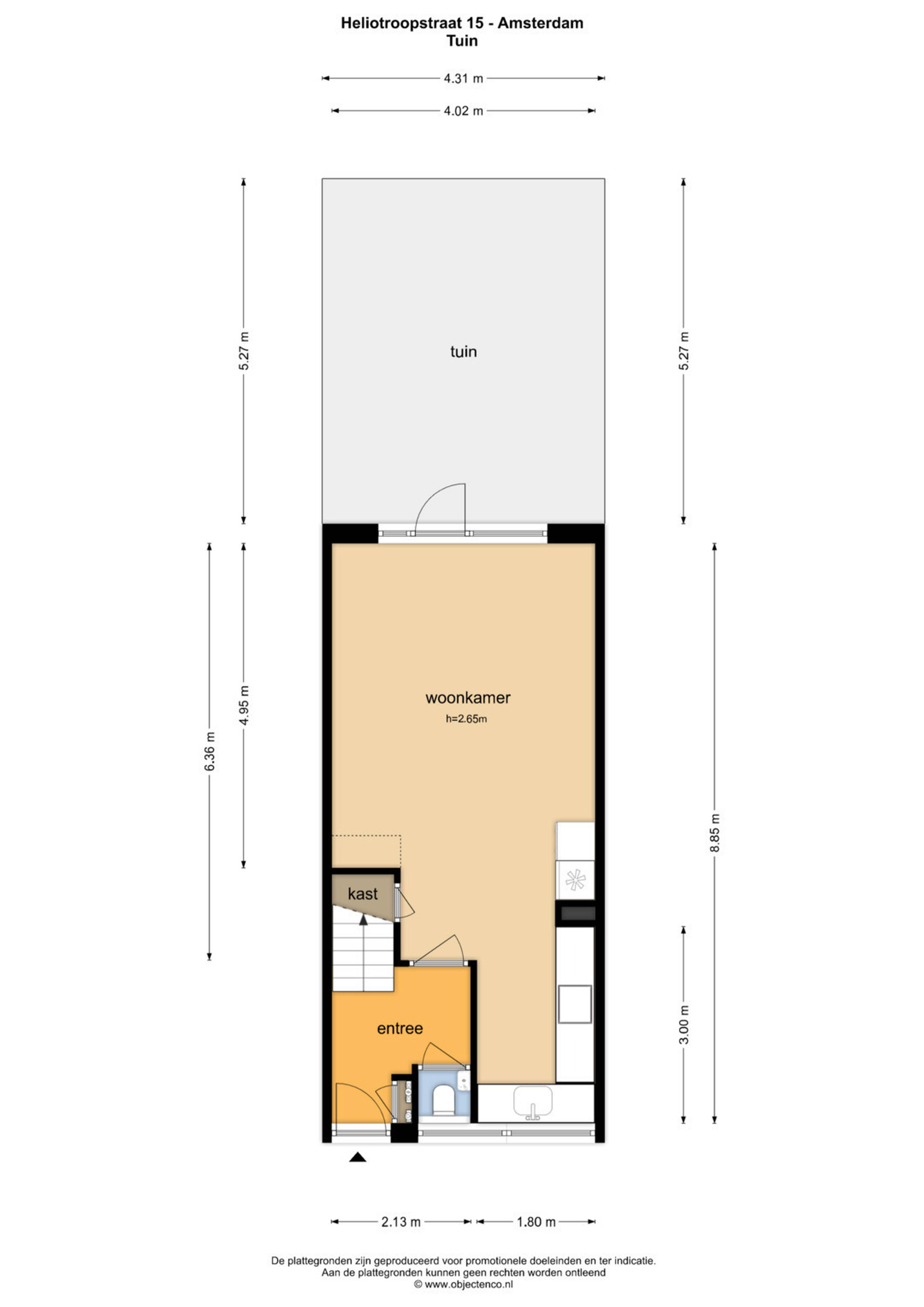
Begane grond:
Bij binnenkomst word je verwelkomd door een ruime hal met garderobe, een moderne toiletruimte en een vernieuwde meterkast. De stijlvolle woonkeuken (2024) is voorzien van hoogwaardige inbouwapparatuur en kijkt uit over de straat. De lichte, zonnige woonkamer heeft strak gestuukte wanden en plafonds, een fraaie plavuizen vloer met vloerverwarming en biedt direct toegang tot de betegelde tuin met achterom.
Eerste verdieping:
Op deze verdieping bevinden zich twee ruime slaapkamers, waarvan één met toegang tot een heerlijk balkon. De moderne badkamer is voorzien van een ligbad en een dubbele wastafel in een stijlvol meubel. Daarnaast is er een separaat toilet.
Tweede verdieping:
De bovenste verdieping biedt een ruime overloop met CV-ruimte, een grote slaapkamer met toegang tot het dakterras en een werkruimte met wasmachine-aansluiting. Een ideale plek voor een thuiswerkplek of extra bergruimte!
Bijzonderheden:
- Instap klaar en modern afgewerkt
- Ruime tuin, balkon én dakterras
- Nieuwe woonkeuken (2024)
- Gelegen in de geliefde Bloemenbuurt
- Perfecte bereikbaarheid met OV en auto
- Op loopafstand van winkels, horeca en recreatie
- Karakteristieke woning
- Bouwjaar 1925
- De begane grond is in 2024 gemoderniseerd
- De woning is v.v. kunststof kozijnen met dubbele beglazing aan de voorzijde HR++ glas
- Glasvezelkabel
- De servicekosten bedragen ca. € 199,- per maand
- Voortdurend recht van erfpacht waarvan de canon is afgekocht tot 1 mei 2055
- Energielabel C
- Beschermd stadsgezicht
Aanvaarding in overleg.
Mis deze kans niet en kom deze geweldige woning zelf bekijken!
Vraagprijs € 695.000,- k.k.