De 5 appartementen, Pierebaan 15, 19, 25, 37 en 77, kunnen niet meer worden bezichtigd. De inschrijving is inmiddels gesloten.
Welkom op Pierebaan 19 in Monnickendam, waar comfort en duurzaamheid samenkomen. Dit gloednieuwe appartement, gebouwd in 2022, is niet zomaar een woning. Dankzij innovatieve houtskeletbouw geniet je hier van uitstekende isolatie en minimaliseer je je stookkosten. Plus, met je eigen parkeerplaats en zonnepanelen in eigendom, ben je helemaal klaar voor de toekomst.
Stap naar buiten en ontdek de omgeving. Met winkelcentrum 't Spil op loopafstand, maar ook verschillende sportvoorzieningen, de bibliotheek en de fysio vlakbij. Daarnaast veel natuur om de hoek, wat het een ideale plek voor een wandeling in de buitenlucht maakt. Monnickendam heeft een hoop te bieden. Een historisch stadscentrum, horecagelegenheden, genoeg mooie plekken om te wandelen, maar dus ook de dagelijkse voorzieningen. Toch de reuring iets verder weg opzoeken? Uitstapjes naar Amsterdam, Purmerend of Marken? De bushalte voor de deur brengt je zo naar ergens buiten Monnickendam.
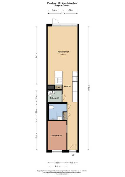
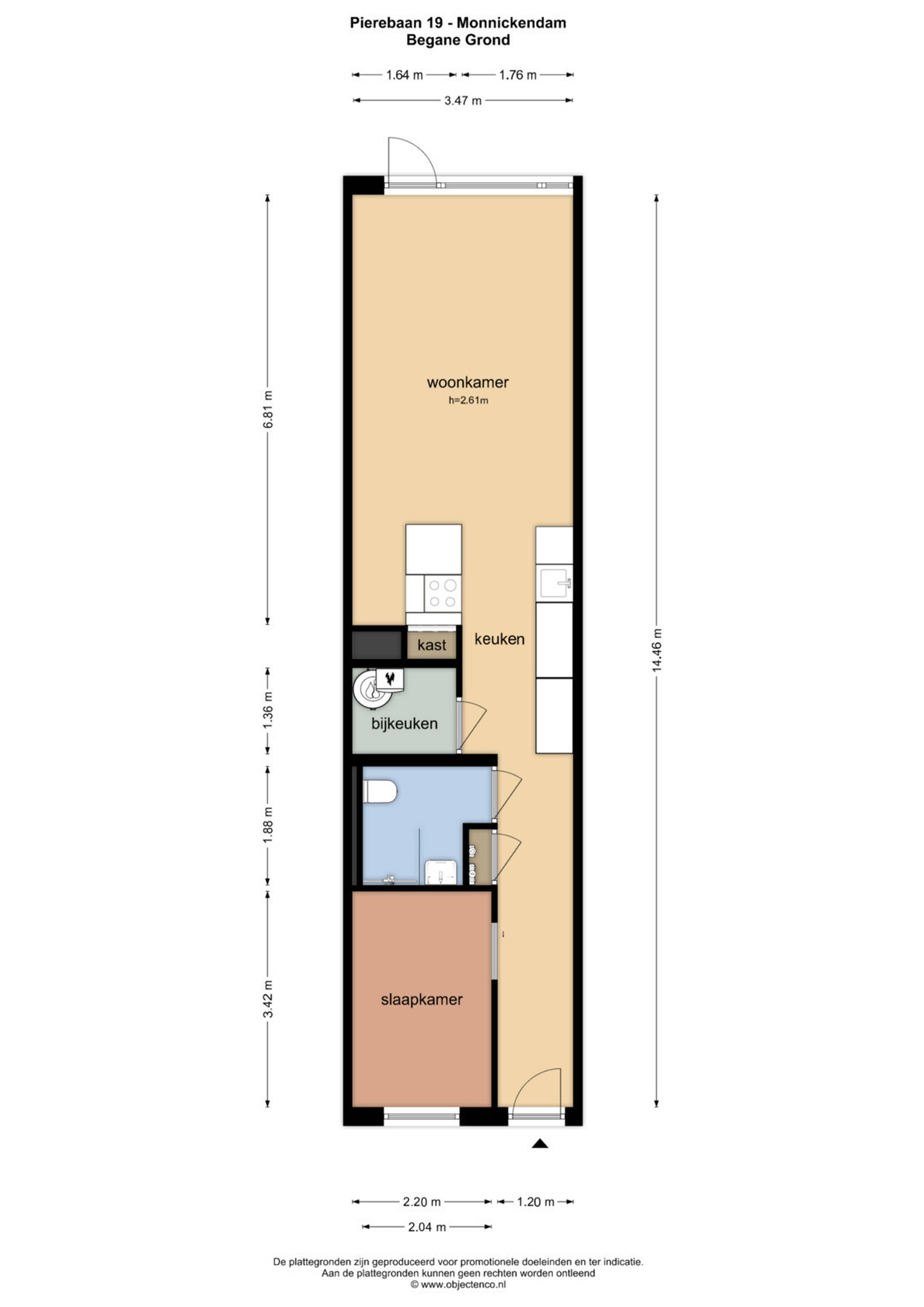
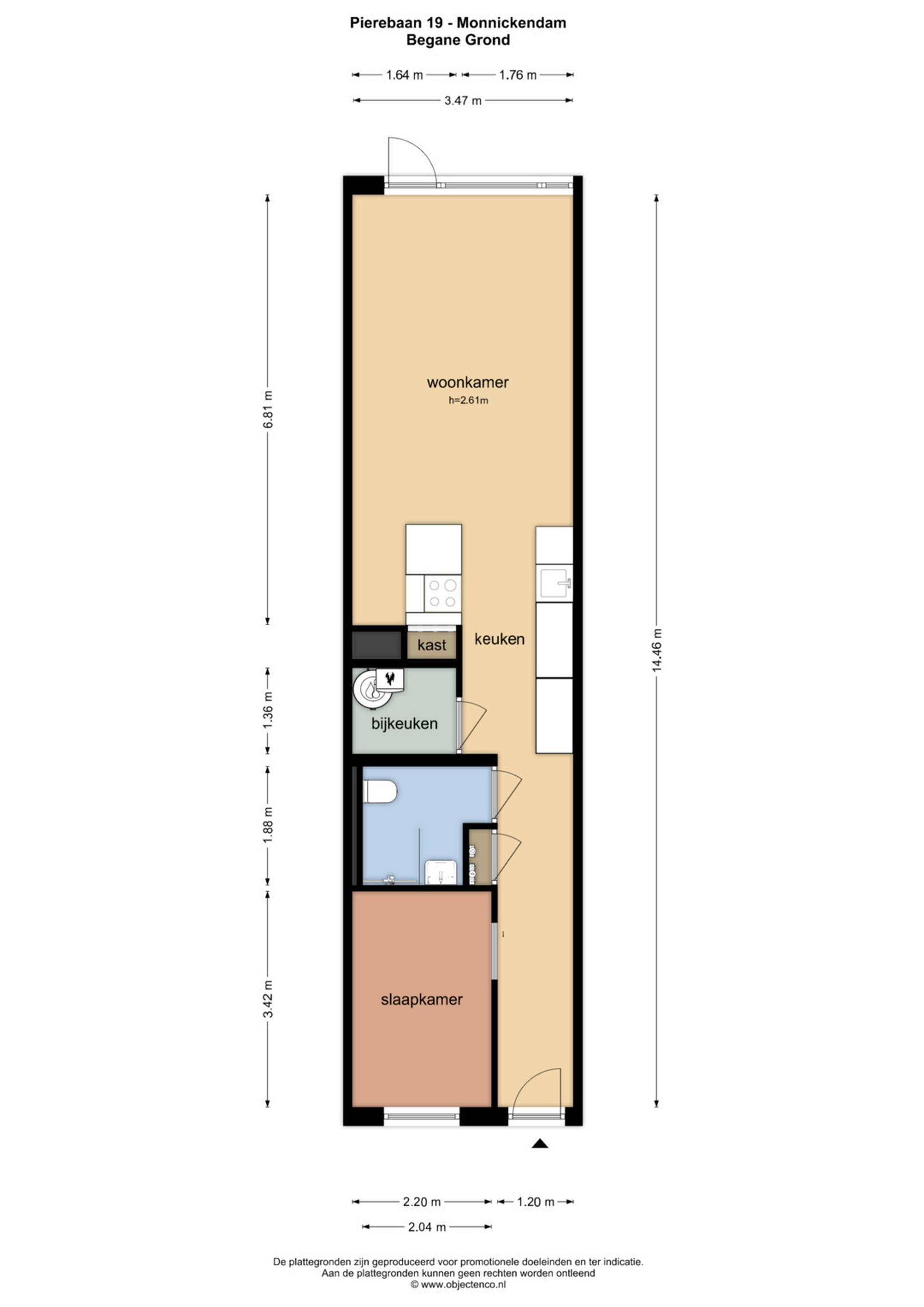
Het appartement is gelegen op de begane grond. Dit appartement biedt een woonkamer met een open keuken. De knusse woonkamer geeft toegang tot buiten. Daarnaast is er 1 slaapkamer aanwezig alsmede een nette badkamer met douche, wastafel en toilet.
Bijzonderheden op een rijtje:
- Instapklaar twee-kamer appartement
- Houtskeletbouw
- Zonnepanelen in eigendom
- Gebouwd in 2022
- Het appartement beschikt over een eigen parkeerplaats.
LET OP VOOR DIT APPARTEMENT GELDEN BIJZONDERE VOORWAARDEN:
*Huishoudens met een bruto jaarinkomen van maximaal € 70.000,-- komen in aanmerking voor de appartementen.
*De woningen worden aangeboden op basis van onderstaande volgorde:
1.Personen welke een sociale huurwoning leeg achterlaten in de gemeente Waterland;
2.Personen woonachtig in gemeente Waterland die nog niet eerder eigenaar zijn geweest van een koopwoning;
3.Tenslotte aan alle andere personen met het hierboven genoemde maximale jaarinkomen.
Bij meerdere inschrijvingen zal de toewijzing per loting plaatsvinden.
*Anti-speculatiebeding: Het anti-speculatiebeding geldt voor een periode van 15 jaar. Dit houdt in dat de af te dragen winst na elke 3 jaar met 20% afneemt.
*Zelfbewoningsplicht voor een periode van 15 jaar.