**DEZE WONING KAN ALLEEN WORDEN BEZICHTIGD TIJDENS HET OPEN HUIS OP VRIJDAG 29 AUGUSTUS VAN 16:00 TOT 17:00 UUR OF OP DINSDAG 2 SEPTEMBER VAN 16:00 TOT 17:00 UUR. KANDIDATEN DIE EEN SOCIALE HUURWONING ACHTERLATEN IN DE GEMEENTE WATERLAND GENIETEN VOORRANG**
**THIS PROPERTY CAN ONLY BE VIEWED AT THE OPEN HOUSE ON FRIDAY THE 29TH OF AUGUST FROM 4:00 PM TO 5:00 PM OR TUESDAY THE 2ND OF SEPTEMBER FROM 4:00 PM TO 5:00 PM AND YOU HAVE TO LEAVE BEHIND A SOCIAL RENTAL PROPERTY IN THE MUNICIPALITY OF WATERLAND**
Welkom op Pierebaan 7 in Monnickendam, waar comfort en duurzaamheid samenkomen. Dit nagenoeg nieuwe appartement, gebouwd in 2022, is niet zomaar een woning. Dankzij innovatieve houtskeletbouw geniet je hier van uitstekende isolatie en minimaliseer je je stookkosten. Plus, met je eigen parkeerplaats en zonnepanelen in eigendom, ben je helemaal klaar voor de toekomst.
Stap naar buiten en ontdek de omgeving. Met winkelcentrum 't Spil op loopafstand, maar ook verschillende sportvoorzieningen, de bibliotheek en de fysio vlakbij. Daarnaast veel natuur om de hoek, wat het een ideale plek voor een wandeling in de buitenlucht maakt. Monnickendam heeft een hoop te bieden. Een historisch stadscentrum, horecagelegenheden, genoeg mooie plekken om te wandelen, maar dus ook de dagelijkse voorzieningen. Toch de reuring iets verder weg opzoeken? Uitstapjes naar Amsterdam, Purmerend of Marken? De bushalte voor de deur brengt je zo naar ergens buiten Monnickendam.
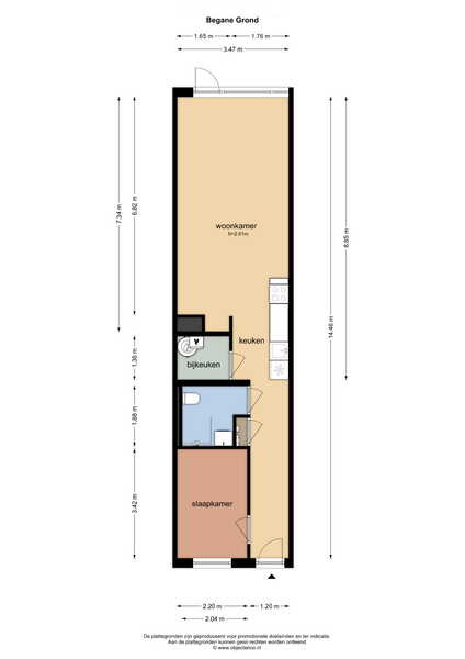
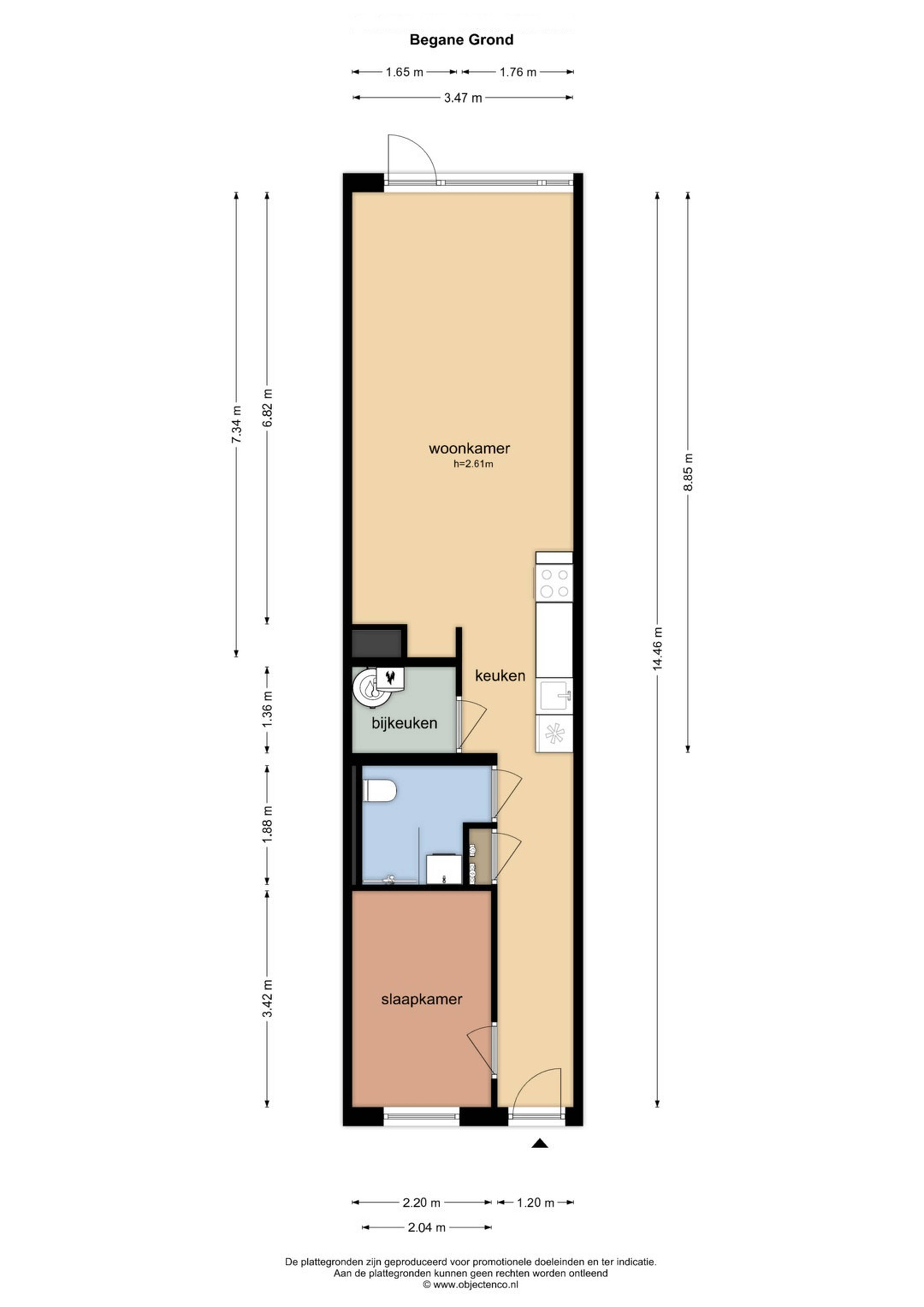
Het appartement is gelegen op de begane grond. Dit appartement biedt een woonkamer met een open keuken voorzien van diverse apparatuur. De knusse woonkamer geeft toegang tot een kleine buitenplaats, waar je lekker van het zonnetje kan genieten. Daarnaast is er 1 slaapkamer aanwezig alsmede een nette badkamer met douche, wastafel en toilet.
Bijzonderheden op een rijtje:
- Instapklaar twee-kamer appartement
- Houtskeletbouw
- Zonnepanelen in eigendom
- Gebouwd in 2022
- Het appartement beschikt over een eigen parkeerplaats.
LET OP VOOR DIT APPARTEMENT GELDEN BIJZONDERE VOORWAARDEN:
* De woningen worden verkocht via inschrijving, waarna een openbare loting plaatsvindt.
* Huishoudens met een bruto jaarinkomen van maximaal € 81.375,-- komen in aanmerking voor de appartementen.
* Er geldt een voorrang bij de loting op basis van onderstaande volgorde:
1.Personen welke een sociale huurwoning leeg achterlaten in de gemeente Waterland;
2.Personen woonachtig in gemeente Waterland die nog niet eerder eigenaar zijn geweest van een koopwoning;
3.Alle andere personen met het hierboven genoemde maximale jaarinkomen, ingeschreven in
de gemeente Waterland.
4. Tenslotte aan alle andere personen met het hierboven genoemde maximale jaarinkomen, buiten
de gemeente Waterland.
Bij meerdere inschrijvingen zal er een loting plaatsvinden.
*Anti-speculatiebeding: Het anti-speculatiebeding geldt voor een periode van 10 jaar. Dit houdt in dat de af te dragen winst na elk jaar met 10% afneemt.
*Zelfbewoningsplicht voor een periode van 15 jaar.