Algemeen
Prijs
€ 285.000 k.k.
Bouwtype
bestaande bouw
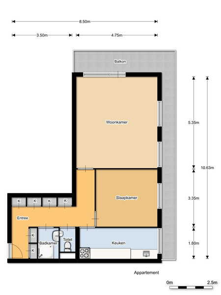
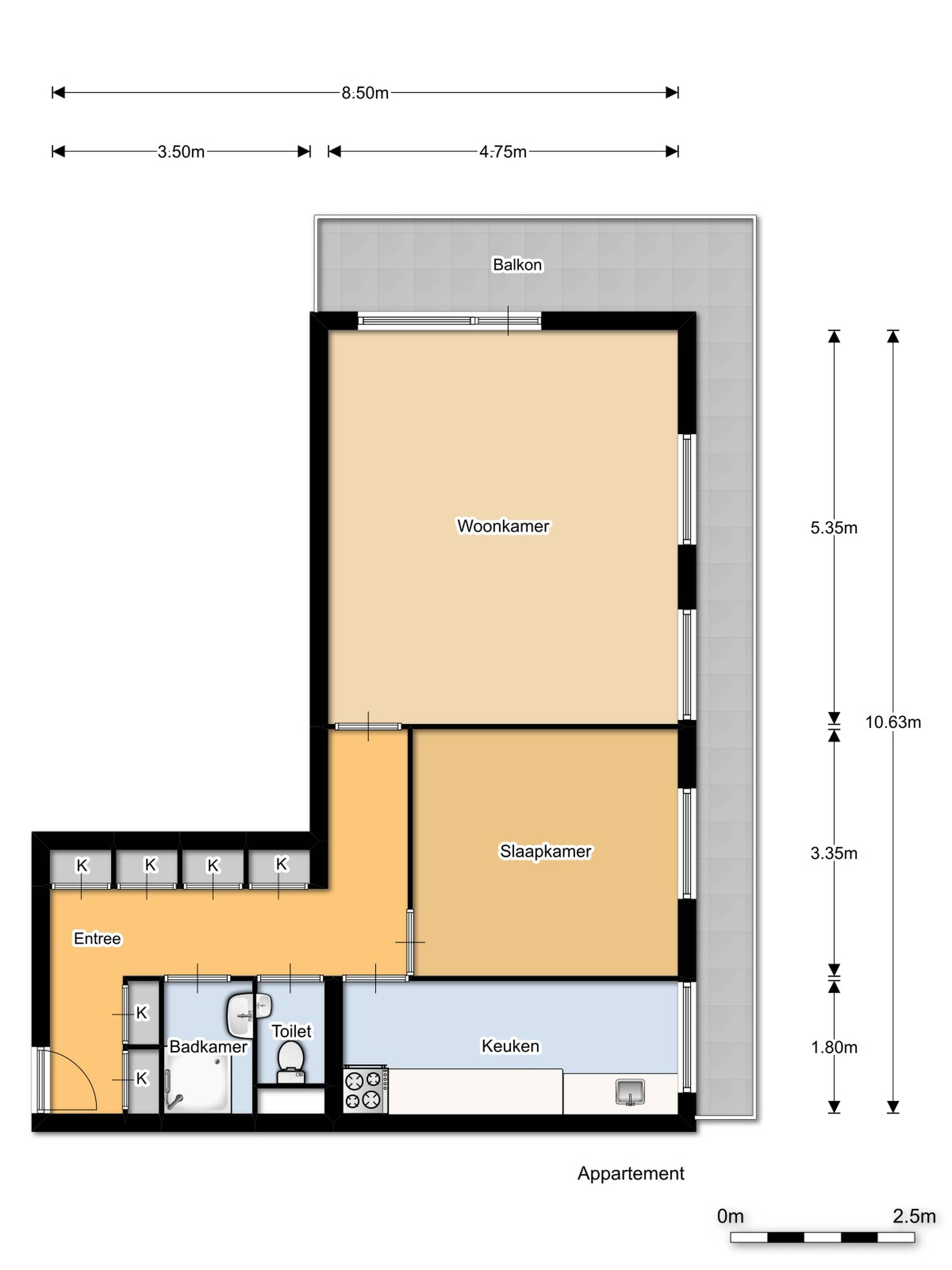
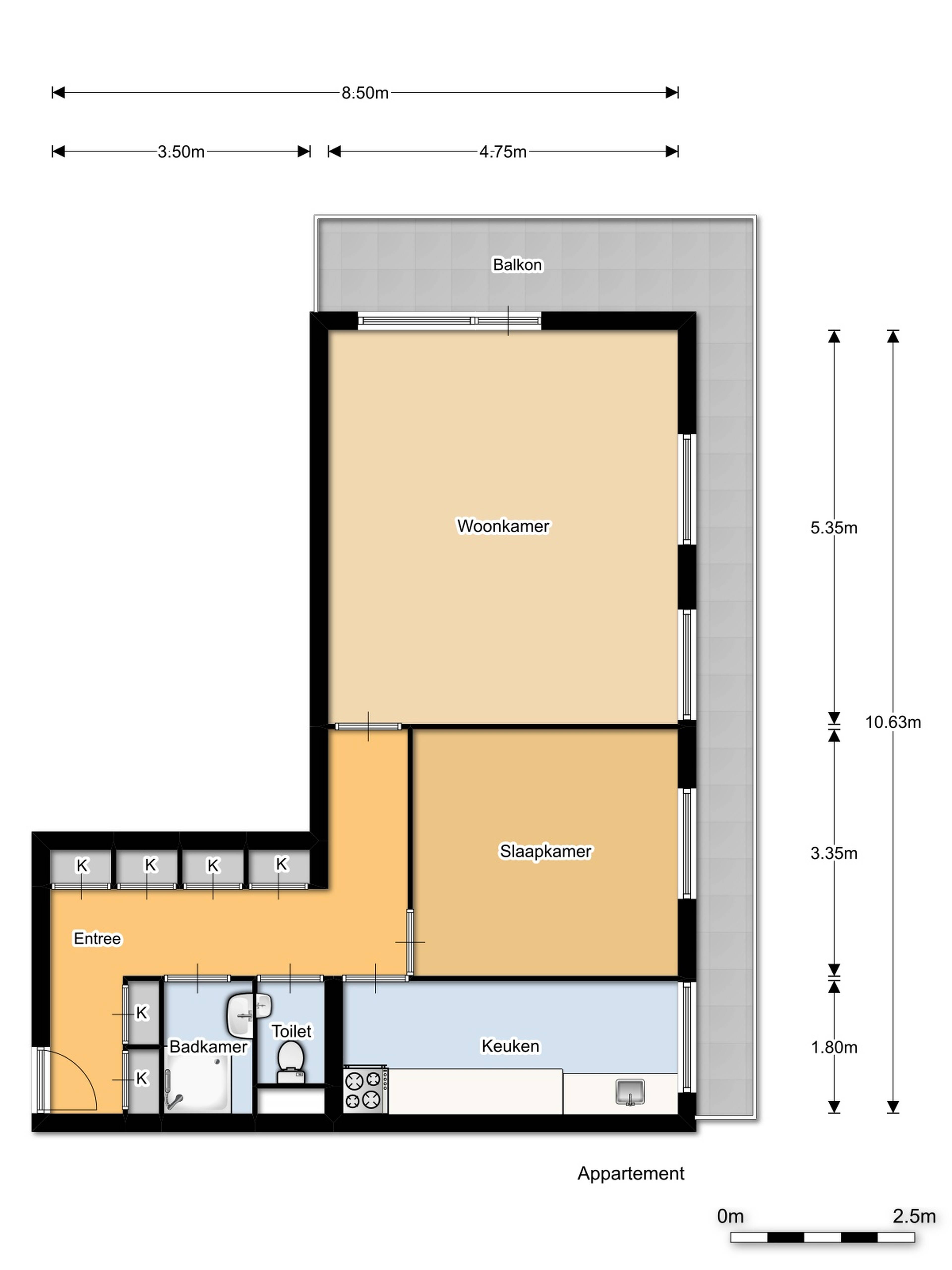
Woonoppervlakte
63 m2
Aantal kamers
2
Aantal slaapkamers
1
Aantal badkamers
1
Omschrijving
Kenmerken
Adres
Suze Groenewegstraat 123
1442 ND PURMEREND
1442 ND PURMEREND
Prijs
Soort
vraagprijs
Prijs
€ 285.000 k.k.
Aanvaarding
in overleg
Aangeboden sinds
13 September 2024
Details
Type object
appartement/portiekflat
Bouwtype
bestaande bouw
Bouwjaar
1974
Woonoppervlakte
63 m2
Gebouwgebonden buitenruimte
27 m2
Externe bergruimte
6 m2
Inhoud
225 m3
Open portiek
nee
In aanbouw
nee
Ligging
aan water, in woonwijk, vrij uitzicht
Soort verwarming
blokverwarming
Warmwaterinstallatie
centrale voorziening
Isolatievormen
dubbel glas
Voorzieningen
mechanische ventilatie, lift
Indeling
Aantal kamers
2
Aantal slaapkamers
1
Aantal badkamers
1
Typewoonkamer
woonkamer
Keukensoort
dichte keuken
Tuin
Aanwezig?
nee
Garage
Aanwezig?
nee
Bergruimte
Schuur/berging?
box
Voorzieningen
voorzien van elektra
VVE
Ingeschreven in Kamer van Koophandel
ja
Actief
ja
Reservefonds
ja
Onderhoudsplan
ja
Opstalverzekering
ja
Periodieke bijdrage
€ 99
Energielabel
Aanwezig?
ja
Klasse
C
Downloads
Interesse? Maak een afspraak!
Plan zelf online een bezichtiging en vergroot uw kans op deze woning.

