Instapklaar, energiezuinig en tot in detail gemoderniseerd: deze ruime eindwoning in de geliefde wijk Weidevenne is er één waar je zo in kunt. Met circa 102 m² woonoppervlakte, vier volwaardige slaapkamers, een zonnige tuin op het zuiden én energielabel A+ biedt deze woning alles wat jonge gezinnen vandaag de dag zoeken.
De woning is de afgelopen jaren op belangrijke punten vernieuwd, waaronder de luxe keuken en het sanitair in 2022. In combinatie met vloerverwarming, airconditioning, zonnepanelen en een dakkapel uit 2023 is hier sprake van comfortabel en toekomstbestendig wonen.
Ligging en omgeving
De woning is gelegen aan de Coloradostraat in de populaire wijk Weidevenne. Een ideale locatie voor gezinnen, met scholen, winkels en het NS-station op korte afstand.
Daarnaast loop je vanuit de woning zo het groene Purmerland in, perfect voor een wandeling of om even te ontsnappen aan de drukte. Voor een hapje of drankje ligt ook Brasserie De Jutter dichtbij. Het centrum van Purmerend en uitvalswegen richting Amsterdam zijn bovendien snel bereikbaar.
Indeling
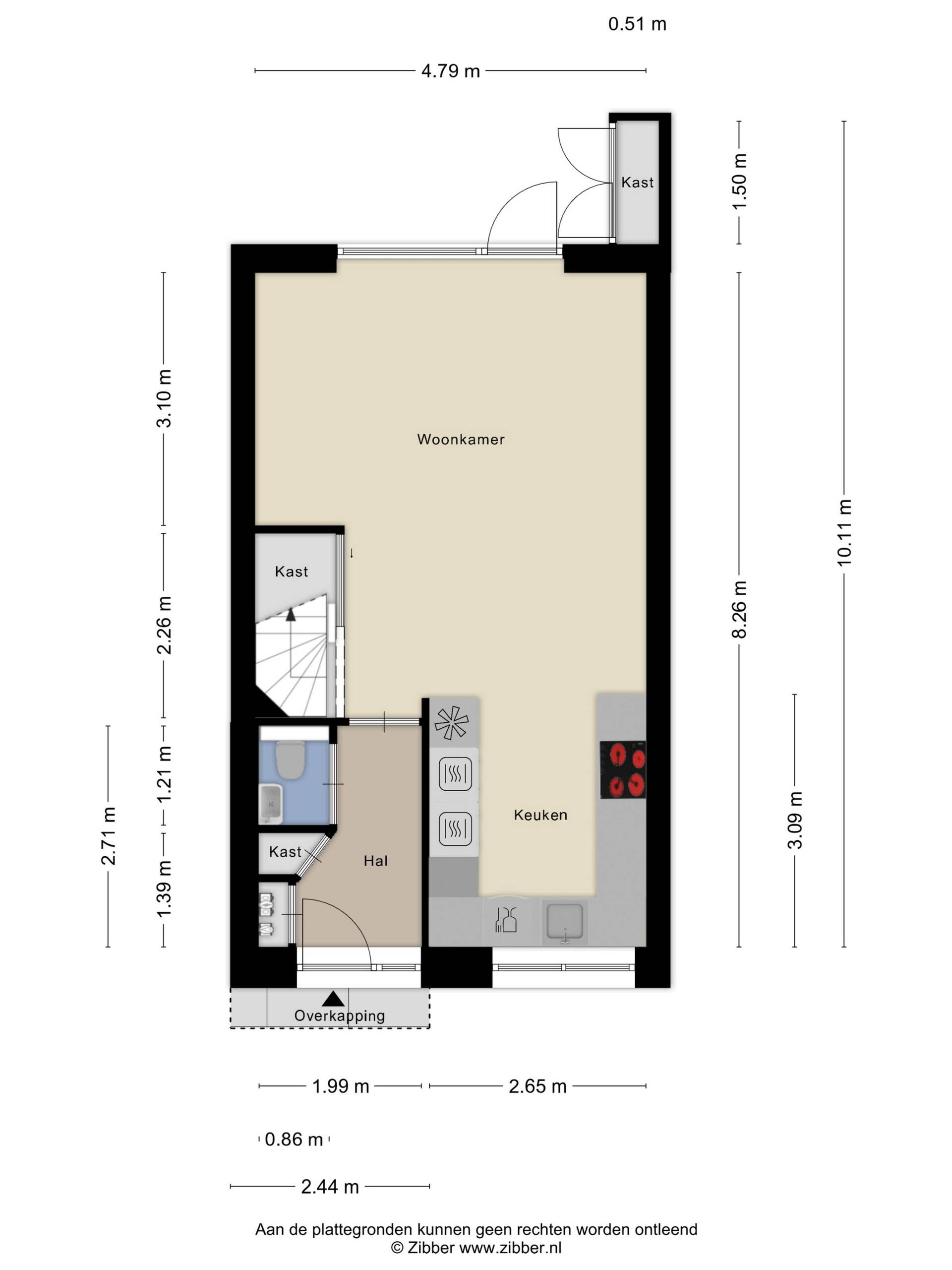
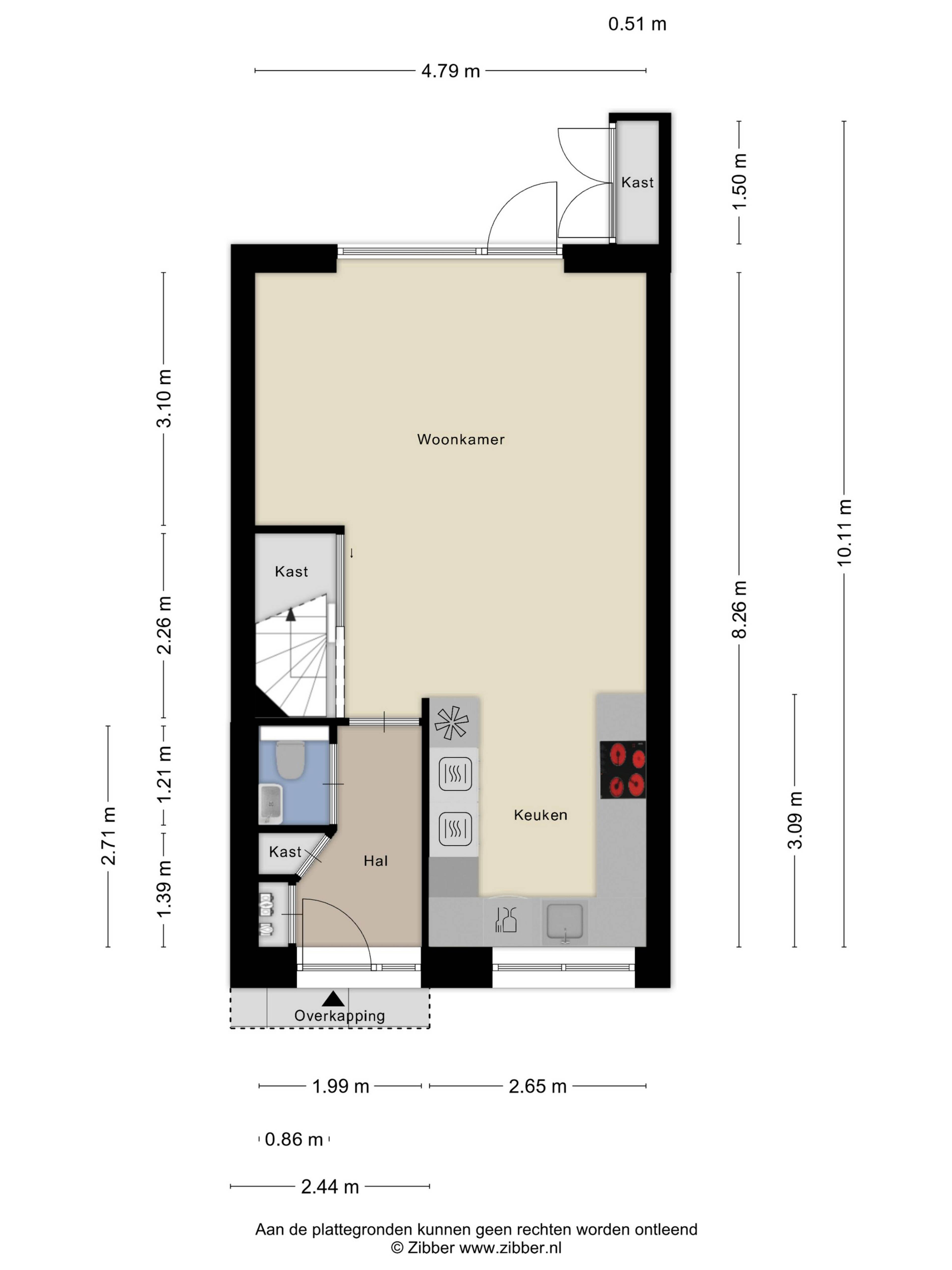
Begane grond
Entree/hal met meterkast, modern toilet (2022) en trapopgang. De begane grond is voorzien van vloerverwarming. De woonkamer is licht en ruim, met in 2023 geplaatste schuifdeuren die zorgen voor een moderne en flexibele indeling.
De keuken (2022) is uitgevoerd in een praktische U-opstelling met een granieten werkblad en voorzien van luxe inbouwapparatuur, waaronder een stoomoven, combi-magnetron, Bosch vaatwasser, Quooker, grote koelkast en separate vriezer.
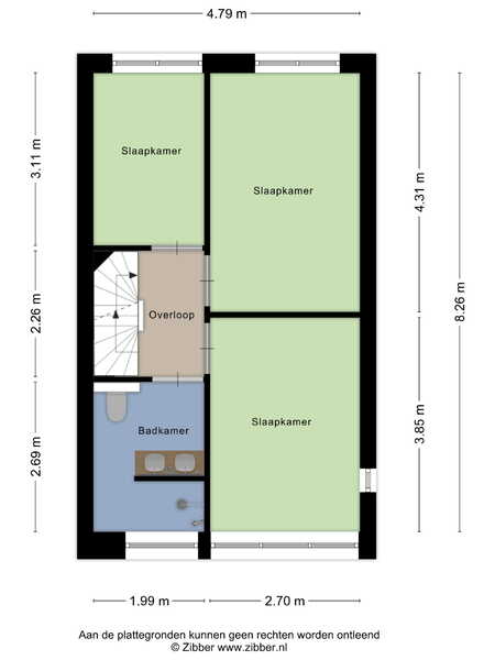
Eerste verdieping
Overloop met toegang tot drie slaapkamers en de moderne badkamer (2022). De twee grootste slaapkamers zijn voorzien van airconditioning. De badkamer is compleet uitgevoerd met een inloopdouche, dubbel wastafelmeubel, designradiator en luxe sanitair.
Tweede verdieping
Via een vaste trap bereikbare zolderverdieping met een voorzolder voorzien van aansluitingen voor wasmachine en droger en mechanische ventilatie. Daarnaast bevindt zich hier een ruime vierde slaapkamer met dakkapel (2023), airco, HR++ beglazing en screens/horren. Een volwaardige en comfortabele extra woonlaag.
Buitenruimte
Zonnige achtertuin van circa 50 m², gelegen op het zuiden. De tuin biedt volop zon en privacy en beschikt over een vrijstaande berging van circa 3,00 x 2,60 meter. Openbaar parkeren is beschikbaar in de directe omgeving.
Bijzonderheden
- Woonoppervlakte ca. 102 m²
- Perceel ca. 125 m²
- Zonnige achtertuin op het zuiden (ca. 50 m²)
- Keuken vernieuwd in 2022 met luxe inbouwapparatuur
- Badkamer en toilet vernieuwd in 2022
- Vloerverwarming op de begane grond
- Schuifdeuren woonkamer (2023)
- Dakkapel zolder (2023)
- Vier volwaardige slaapkamers
- Airconditioning in drie slaapkamers
- 8 zonnepanelen
- Grotendeels dubbel glas, zolder HR++
- Energielabel A+ (geldig tot 2036)
Ben je op zoek naar een instapklare, energiezuinige gezinswoning op een fijne locatie met natuur en voorzieningen binnen handbereik? Dan is dit een woning die je gezien moet hebben. Neem contact met ons op voor een bezichtiging en laat je verrassen door de ruimte en het wooncomfort.