Aan een rustige en kindvriendelijke straat in de woonwijk Risdam gelegen goed onderhouden tussenwoning. De woning beschikt over een woonoppervlakte van ca. 80 m² en potentieel nog ca. 25 m² (de ruime zolder op de tweede verdieping). Verder zijn er drie slaapkamers en een zonnige achtertuin op het zuiden met berging en achterom. Een ideale gezinswoning op een aantrekkelijke locatie.
Indeling
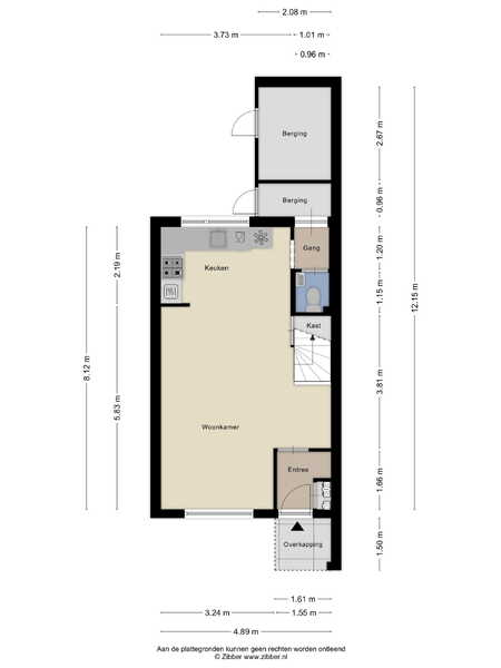
Via de voortuin bereikt u de entree van de woning. De hal is voorzien van de meterkast en biedt toegang tot de woonkamer.
De woonkamer kenmerkt zich door een prettige lichtinval en beschikt over een open trap naar de eerste verdieping. Onder de trap bevindt zich praktische bergruimte. De open keuken is aan de achterzijde gesitueerd en opgesteld in een hoekopstelling. De keuken is voorzien van een gascomfort en afzuigkap en biedt een functionele werk- en opbergruimte. Aan de achterzijde van de woning bevindt zich het toilet met fonteintje. Hier is tevens een deur naar het achtergelegen berghok met directe toegang tot de tuin.
De zonnige achtertuin is gelegen op het zuiden, waardoor u vrijwel de gehele dag kunt genieten van de zon. De tuin is onderhoudsarm aangelegd en beschikt over een aangebouwde stenen berging. Dankzij de aanwezige achterom is de tuin tevens gemakkelijk bereikbaar.
De eerste verdieping beschikt over drie slaapkamers van goed formaat. De badkamer is praktisch ingericht en voorzien van een douche, wastafelmeubel en toilet.
Via een vaste trap bereikt u de ruime zolderverdieping. Hier bevindt zich de aansluiting voor de wasmachine. Deze verdieping biedt uitstekende mogelijkheden voor het realiseren van een vierde (ruime) slaapkamer. Momenteel wordt deze verdieping niet als woonoppervlakte meegerekend, maar eventueel door plaatsing van een groter dakraam of een dakkapel, kan het wel als woonoppervlakte meegeteld worden.
Ligging
De woning is gelegen aan de Waterkers in Zwaag, een populaire woonomgeving met diverse voorzieningen op korte afstand. In de directe nabijheid bevinden zich sportverenigingen, een sportschool, een indoor speelparadijs en een supermarkt. Tevens zijn scholen en openbaar vervoer goed bereikbaar. De ligging ten opzichte van de Provincialeweg en de nabijgelegen snelweg zorgt voor een uitstekende verbinding richting onder andere Hoorn en omliggende steden.
Belangrijkste kenmerken:
•Woonoppervlakte ca. 80 m², maar met de zolder erbij gerekend is het ca. 105 m²;
•Perceel eigen grond 112 m²;
•Energielabel B;
•Drie slaapkamers, eventueel mogelijkheid voor een vierde;
•Zonnige achtertuin op het zuiden met berging en achterom;
•Centrale ligging nabij voorzieningen en uitvalswegen.
Bent u op zoek naar een comfortabele gezinswoning met potentie op een fijne locatie? Wij nodigen u graag uit voor een bezichtiging.